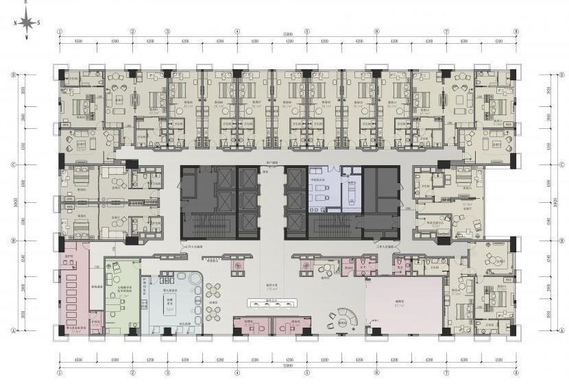
怡心月子中心裝修設計,位于福田區梅林,面積1100平方米,主要經營月子護理、母嬰護理等,共設有22個房間床位。其他如醫療區,教學區,門診大廳等。
柔美、潔凈是本案的設計宗旨,整體設計以這一目標展開,各種裝飾曲線的應用,白色、粉色、淺藍色、紫色的色彩應用,打造一個柔美潔凈的月子中心。
門診大廳以白色的環境來顯示月子中心的潔凈,局部以粉色的色調帶來一些溫馨的氣息。地面鋪白色拋光磚,簡約的平面天花安裝方塊燈盤呈菱形排列。窗口指示牌以粉色底黑色字。墻面設計了一些粉色的花型圖案,顯得比較溫馨。整個門診大廳以簡約的裝修設計,不做任何多余的裝飾,打造了一個潔凈雅致的門診空間。
護理中心墻面以簡約的歐式墻板裝飾,天花以圓角裝飾,以天空的藍色的云朵、星星為元素裝飾,鞋帽柜以大寫的英文字母區分,粉色的布藝窗簾,淺色色的護理床,整體的色彩和裝飾體現一種女性的柔美,迎合寶媽們的喜好,并設計了一些卡通的圖案,來營造一個溫馨柔美的母嬰護理空間。

月子中心 (21)
月子中心裝修平面圖,共設有22的獨立的房間,門診大廳,護理室,教學區等。

月子中心門診大廳
月子中心門診大廳,簡約的設計,白色的環境色,粉色的裝飾,營造一個潔凈雅致的門診空間。

月子中心裝修護理室
月子中心裝修護理室,粉色布藝窗簾、淺藍色護理床、藍色的云朵星星。各種元素編織出一個溫馨柔美的母嬰護理空間。

月子中心裝修護理室三
月子中心裝修護理室三,簡約的天花吊燈、粉色的窗簾、藍色的護理床,溫馨的環境深得寶媽們的喜愛。

月子中心小護理室
月子中心小護理室,墻面咖啡色花紋墻紙裝飾,紫色的護理床配白色的床單,彰顯柔美潔凈。





