項目地點:深圳市龍崗區平湖
設計理念:本案是一所新中式風的玉石工藝展廳裝修設計案例,新中式風格在設計上延續了明清時期家居配飾理念,提煉了其中經典元素并加以簡化和豐富,在家具形態上更加簡潔清秀,同時又打破了傳統中式空間布局中等級、尊卑等文化思想,空間配色上也更為輕松自然。
傳統新中式風格家具雖以木質材料居多,顏色多以仿花梨木和紫檀色為主。墻壁既可四白落地,也可以選擇配合深褐色家具的米白、米黃或沙色。最具代表性的家具是茶幾、地燈、圈椅、窗欞、屏風、月亮門等。
綠植是新中式風格中不可或缺的元素,除了綠蘿、鳳尾竹、滴水觀音等觀葉植物,樹雕、盆景等也是不錯的選擇。

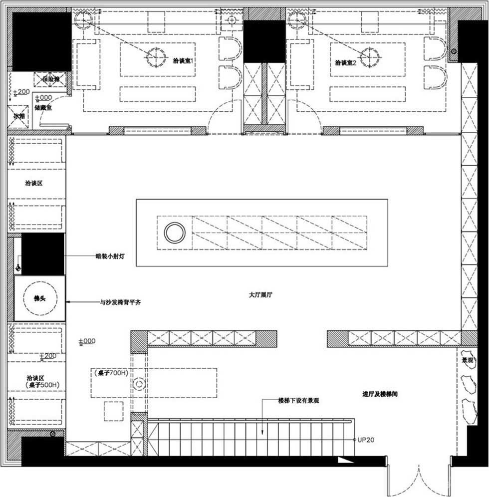
利用中式傳統文化中月門的設計理念,在墻面上通過開小孔的方式,管中窺豹的情趣,可以看到洽談區的全景,在素雅的外墻上,猶如映射出的一副風景畫。

長條形泡茶桌和月門連接的方式,既可以作為休閑泡茶之用,也是一份特別的景觀,可以休閑洽談,也可以作為珠寶的展示,富含濃厚的中式文虎氛圍。



簡單的原木紋理桌椅的搭配,看上去擁有古樸的韻味,但更簡單和自然,玻璃小展柜和傳統瓷器相結合的方式,在燈光的照射下,更為富貴和有文化的內涵。


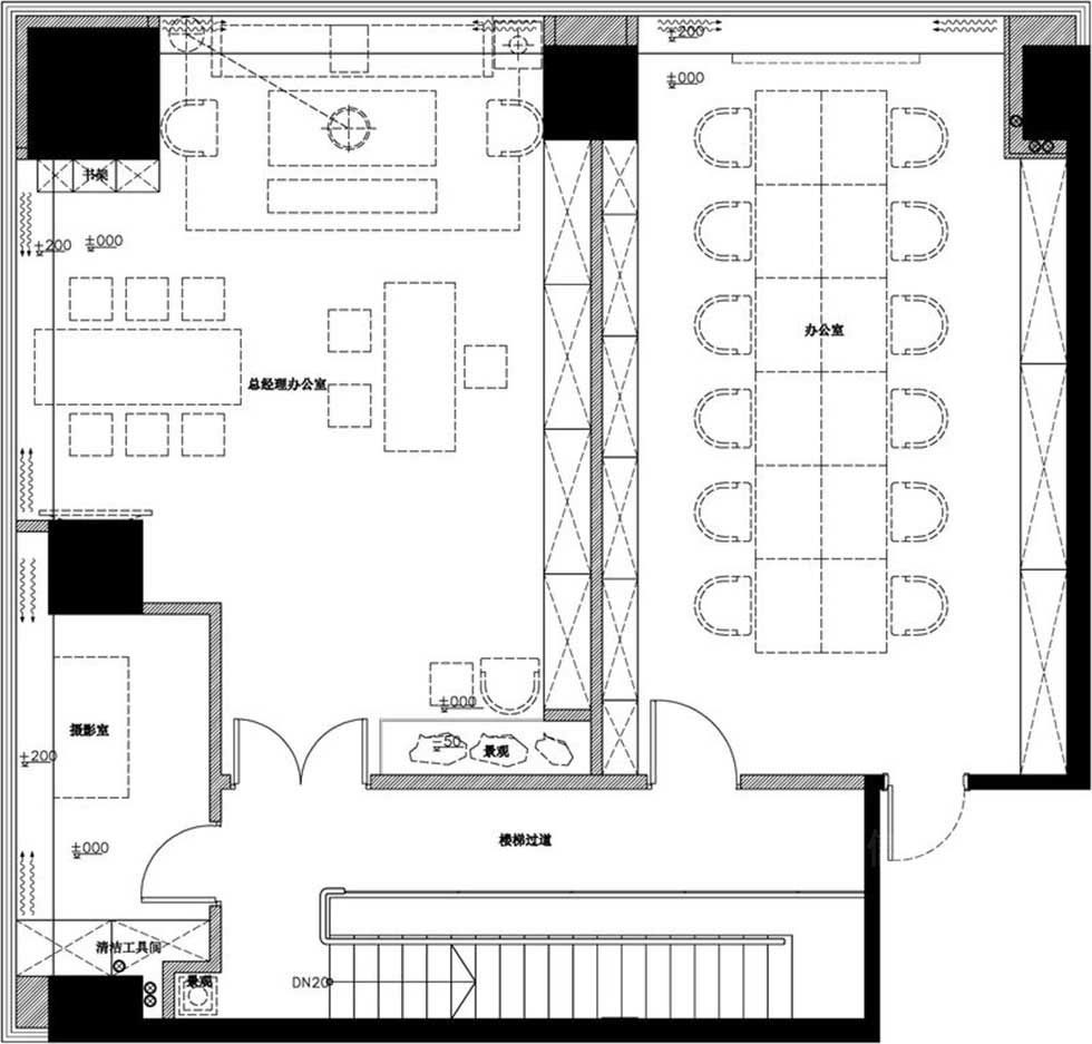
淺色系原木風的中式家具,柜式的茶幾和木藝沙發的組合,看上去更簡單更溫馨,卻不缺少古典式的禪趣,墻畫和養眼的綠意的加入,讓人沉浸在文化和書卷的優雅氛圍中。


總經辦的裝修設計,拋棄了傳統中式紅木家具雕梁畫柱的復雜設計,選用更自然更貼近生活的原木風設計,根雕木藝的辦公桌,木柴裝飾的書柜,回歸最原始和簡單的生活方式。


平面布置開闊大方,功能性強,空間分布合理,燈光設計優雅,暖色調的光線,卻不會讓人感覺到黑暗,相反營造出一種古典式的傳統文化氛圍,和歲月流逝的意境美。








