孩子們的世界是奇幻的,是五彩繽紛的,為了能讓孩子在這樣的世界里快樂成長,幼兒園裝修設計理應在空間設計上加入天馬行空的想象情節,使其具備新奇、快樂的風格。深圳和協幼兒園裝修設計,便是這樣成長需要和裝修風格的踐行者,在它為孩子們提供的學習的教室里,天花板就像蘑菇上的色彩暈圈一般,綠色渲染,看起來充滿希望;桌椅,小巧玲瓏,又渲染了奶白色的溫馨色彩,無形中帶給人一種安心的感覺。游玩場所、休息場所,通過木板的不同隔斷,在將功能進行明確劃分的同時,更打扮成一個美麗的精靈世界,教孩子們玩得高興,學得開心。因而,可以清晰看出,深圳和協幼兒園裝修設計,它室內的每一處裝飾、家居擺設都,無不遵循著孩子們的興趣,并成為為他們構建出一個非常奇異瑰麗的新世界來。

深圳和協幼兒園裝修設計-滑梯玩耍區

深圳和協幼兒園裝修設計-造型墻裝修設計

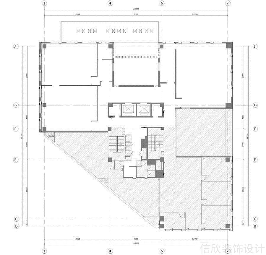
深圳和協幼兒園裝修設計-設計構思

深圳和協幼兒園裝修設計-中間游樂區域

深圳和協幼兒園裝修設計-外立面設計

深圳和協幼兒園裝修設計-中庭游樂區全景

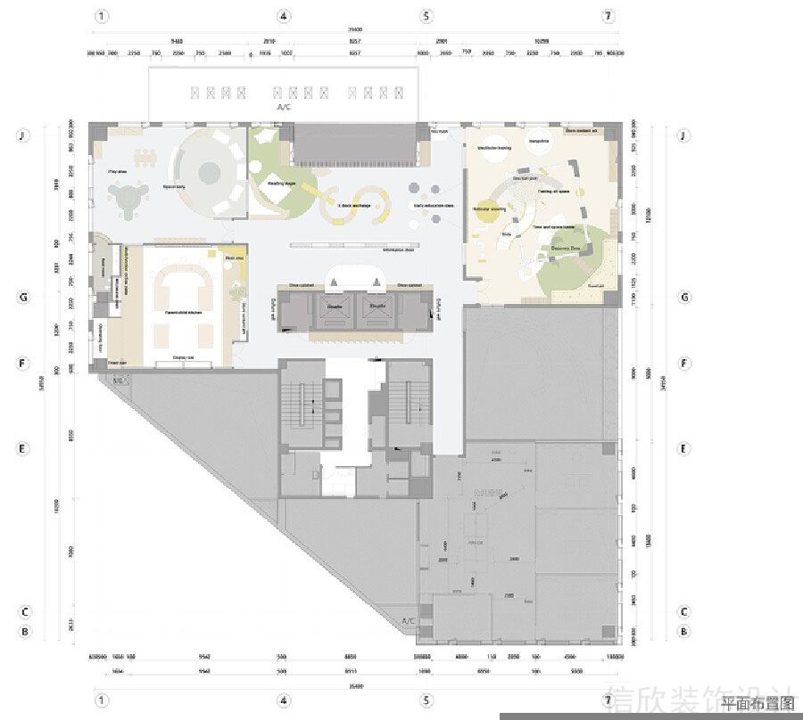
深圳和協幼兒園裝修設計-俯視設計圖

深圳和協幼兒園裝修設計-圓形裝飾柱子

深圳和協幼兒園裝修設計

深圳和協幼兒園裝修設計-手工制作臺

深圳和協幼兒園裝修設計-公共區域過道

深圳和協幼兒園裝修設計

深圳和協幼兒園裝修設計

深圳和協幼兒園裝修設計

深圳和協幼兒園裝修設計

深圳和協幼兒園裝修設計

深圳和協幼兒園裝修設計

深圳和協幼兒園裝修設計

深圳和協幼兒園裝修設計

深圳和協幼兒園裝修設計

深圳和協幼兒園裝修設計

深圳和協幼兒園裝修設計

深圳和協幼兒園裝修設計

深圳和協幼兒園裝修設計







