本案是位于深圳鹽田鴻榮源壹城中心辦公室設計圖。我們在現代表現手法的辦公空間中加入了更加穩重的氣息,紳士的氣質,營造一個前所未見的商務氣韻。用前衛的想法,不斷碰撞產生出新的極富生命力的新辦公空間。整體辦公空間延續商務氣質,在這有限空間包含辦公,會客與,接待互動的私享區域。人與空間,追求的是空間的本質,給使用者一個場景感極強的沉浸當下的東方辦公體驗。
深色的辦公環境,更讓人沉思,那一塊白色的吊頂,強烈的進行了對比,也許就是沉思后指明的方向。
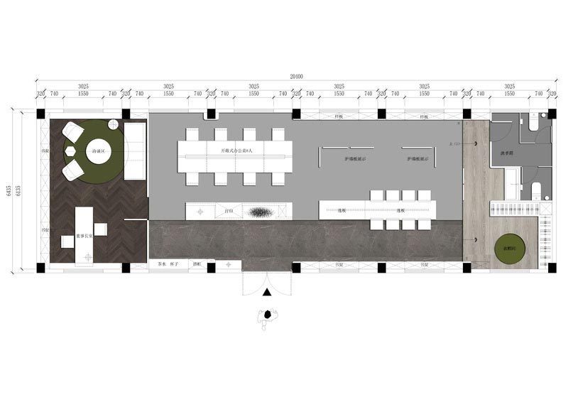
開敞的接待、展示區與私密的洽談區。 天花大體快的切割,增強空間延續性。
更有獨特的辦公家具,是讓整體設計更出彩的選擇。
黑、白的對比,已經給了我們時覺得沖擊,干凈的空間感,筆直的線條,讓整個空間更有視覺享受。
這樣的一個環境,更能讓人靜小來好好的工作。
黑、白色亮色強烈的對比,無疑是給了我們很強的視覺感受。
旋轉的木質屏風,不僅能合理的劃分空間,起到相對私密的空間,還能作為人與空間互動的一個載體。
陽光透過窗戶,綠植的影子映射在墻上,半躺在沙發,思考著未來。
整齊的空間里面,唯獨只有那顆綠植像是在風中翩翩起舞。
沒有居中的辦公桌設計,考慮更多的是滿足其他功能區的合理使用。








