項目地點:深圳市寶安區西鄉
設計理念:本案是一所現代風買手店WFC概念店裝修設計案例,由深圳信欣裝飾公司設計團隊擔綱設計,設計師通過極簡的設計理念,力求打造出獨一無二人氣打卡商場,以白色和粉紅色為主色調,與商場外面世界形成極大的反差,與外面琳瑯滿目的商品剝離開,更有鮮明的形象特點。頂面以白色石膏板加下沉式的格柵設計,加入燈帶和粉色原木風的眉頭,白色的釉面磚地面,將其反射投影下來,整體看上去滿滿的粉色奶油風和公主風的趣味,滿足一眾年輕女顧客的愛美之心和柔情的少女心,簡潔明亮,寬敞開闊的場景,讓顧客印象深刻,更能記住這家買手店特有的魅力。

買手店wfc概念店裝修設計-白色粉色大廳

買手店wfc概念店裝修設計-白色粉色大廳二
買手店wfc概念店裝修設計-白色粉色大廳,白色的釉面磚地面,粉色的墻面,和粉色原木紋的裝修,讓人置身于奶油和草莓布丁的浪漫氛圍中。

買手店wfc概念店裝修設計-下降時石膏頂面
買手店wfc概念店裝修設計-下降時石膏頂面,石膏格柵頂一頁頁的下沉式設計,加上白色的燈條,降低了層高,增加了溫馨的設計感。
買手店wfc概念店裝修設計-通明玻璃粉色弧形門面
買手店wfc概念店裝修設計-通明玻璃粉色弧形門面,粉色是圓弧形墻面,白色開放式玻璃門,充滿了優雅的知性之美。
買手店wfc概念店裝修設計-粉色原木紋理前臺
買手店wfc概念店裝修設計-粉色原木紋理前臺,粉色實木的前臺,在白色的空間中,就猶如草莓蘸著奶油般,仿佛空氣都充滿甜味。

買手店wfc概念店裝修設計-試衣區
買手店wfc概念店裝修設計-試衣區,隱藏式的試衣間,滿足功能性的同時,不浪費空間,不影響整體的美觀。

買手店wfc概念店裝修設計 -黑色木藝休息區
買手店wfc概念店裝修設計 -黑色木藝休息區,試衣間前的黑色原木和不銹鋼結合的長椅,滿足等候的需求,也從色彩上做了一個很好的點綴。

買手店wfc概念店裝修設計-白色釉面磚走廊

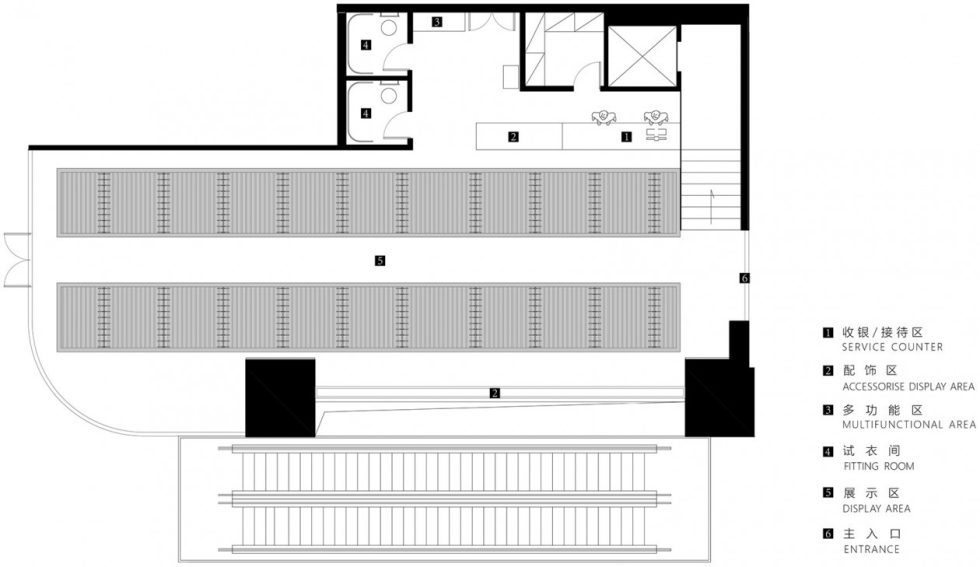
深圳市寶安區西鄉買手店wfc概念店裝修設計-平面圖







