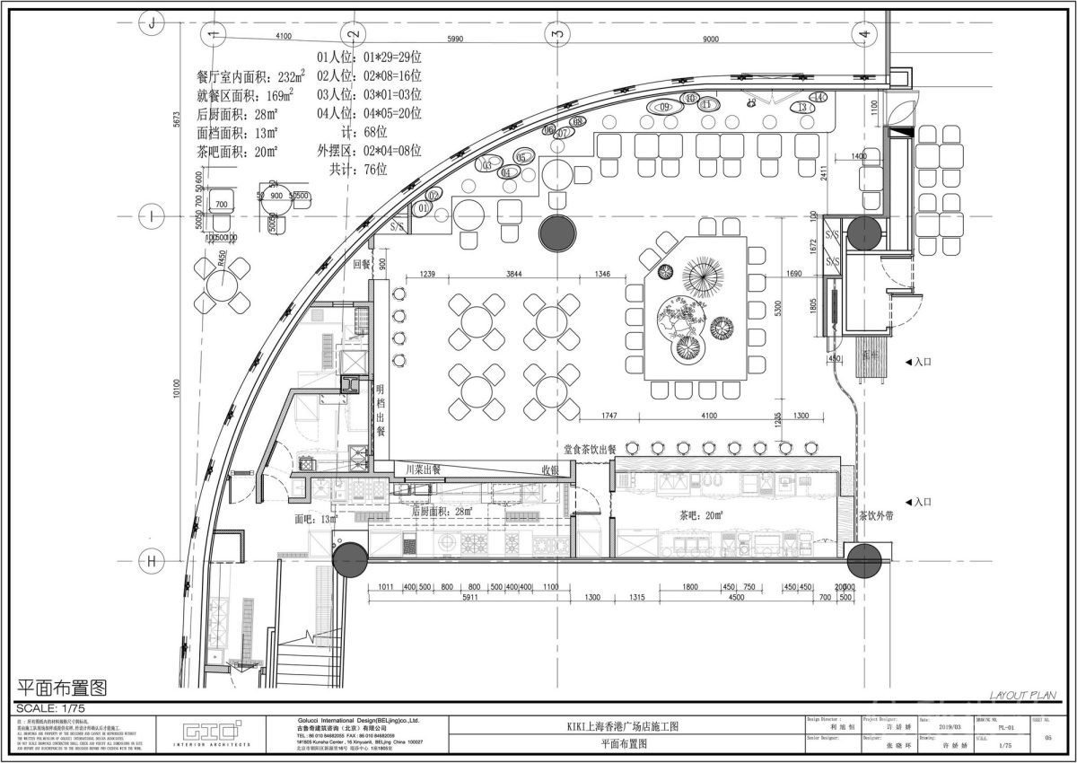
開開面館裝修設計,位于深圳羅湖區萬象城二期,裝修面積200平方米。包含后廚、面檔、茶吧、就餐區。裝修采用比較沉穩的色調設計,墻面大面積采用橡木飾面,橡木酒柜,橡木菜品展示柜,橡木的餐桌椅。采用麻繩編制斜面的天花吊頂。因為靠窗外面屬于很爛的工業爛尾區,景觀特別差。所以窗戶面采用大幅的風景畫裝飾,配合燈光設計,形成室內的一道風景。并沿窗邊設置餐桌,把不利的風景變成室內精美的裝飾。


對應餐桌設置軟膜天花吊頂,均勻地光線灑在餐桌上。


門面外觀墻面以橡木飾面板裝飾。

麻繩編制的天花吊頂,別具一格。燈光透過麻繩,產生隱隱約約的光影。


方形大餐桌,中間擺設景觀。



橡木墻面裝飾,對應每個餐位設置黑色小吊燈。












