項目地點:深圳市羅湖區寶安南
設計概念 DESIGN SYTLE CONNECTION
? ?? ???對于美的追求,一直都是藝術永恒的主題。當某個設計作品,以其獨特的美將你我打動,則它是具有獨特藝術品質的,美聯社,便是如此。
▼ 空間改造 SPACE TRANSFORMATION

深圳羅湖時尚發型會所裝修原始效果實景案例
▲店面原狀
? ?? ???自然中的所有物質,山、水、空氣、都是光所賜,他們中的所有皆有影,影屬于光。光是萬物之源。
—— Louis Isadore Kahn
深圳羅湖時尚發型會所裝修結構改造實景案例
原有店面二樓全部為暗房,無任何采光和通風,我們設計根據業主需求,直面空間痛點,反復推敲后考慮打通室外廊道夾層空間,引入陽光和自然風,并將夾層空間利用成茶室和休息室,用根本上解決原有空間的暗黑格局以及功能疊加的最大化。
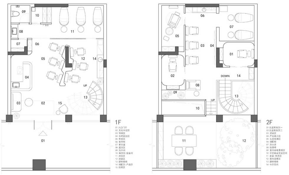
▲平面布置圖
? ?? ???設計秉持著“人應是空間核心”的理念,調整原有的樓梯位置,左右互換,讓空間充滿互動感,成為一個不可多得的空間亮點。

▼ 實景呈現 SPACE PHOTOGRAPHY

深圳羅湖時尚發型會所裝修外立面實景案例
?門頭設計采用大面積留白,將美聯社logo衍生而來的弧形造型貫穿全案,全尺度的落地玻璃門窗,打破了空間中的距離感,無意間拉近了某種互動感,也為整體視覺感受注入了幾絲輕盈透亮的氣息。

? ? 深圳羅湖時尚發型會所裝修接待區實景案例
推門而入是美聯社的等待區,設計師采用了挑空設計的方式,在增加與樓上空間互動的同時,也添了不少趣味性。


深圳羅湖時尚發型會所裝修大廳實景案例
一樓大廳的設計依舊承襲了整個空間主題,整個方案的配色多采用淺淡輕盈的色調,以乳白色水磨石為主體,輔以淺灰色大理石地磚,與零星散落其間的煙灰金屬邊框座椅,共同營造出充滿現代感的簡約氛圍。

深圳羅湖時尚發型會所裝修剪發區實景案例
剪發區的弧形立面墻體,巧妙地隱藏了空間的承重柱,同時承擔起區域分割的功能,并與右側的轉角樓梯相呼應,極大地豐富了視覺效果,更顯現出設計師的匠心獨運。

深圳羅湖時尚發型會所裝修樓梯實景案例
空間中樓梯承擔著溝通與聯結的使命,美聯社的弧形樓梯,外觀頗具現代風格,弧形蜿蜒的側邊扶手,營造出一種奇妙的靈動感,像是在引導人們,去探尋更深處的秘密。

深圳羅湖時尚發型會所裝修吊燈實景案例
這個角度的樓梯,能更加直觀地感受到藝術吊燈的整體設計,造型圓潤可愛卻不失時尚感,在裝點空間的同時,也增加了空間延續性。
深圳羅湖時尚發型會所裝修VIP室實景案例
在總監室這個獨立的空間里,你可以體驗到美發總監為您帶來的尊崇服務。經典的黑白配色悄然提升了空間質感,金色的藝術雕像靜置其間,恰好成為這一方小天地的點睛之筆。







