項目地點:深圳市龍華區民治
設計理念:對于行業具有潮流風向標的一個明星發型會所,整個空間的設計上我們圍繞著最新、最時尚、最潮流為基點。在空間劃分上營造一個流線型的布局,在工藝上做了大膽的挑戰,異型的大理石吧臺,石頭上星星點光,異形的柱子,空間材質上借鑒清水混泥墻空間的素,整個空間香港明星發型師對發型追求的理念相吻合。
-
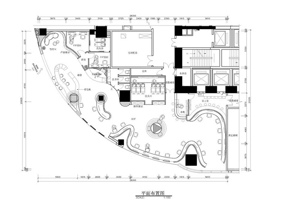
深圳龍華明星發廊裝修設計平面方案
明星發廊裝修設計,平面方案左右開闊,功能性強,視野效果好,空間分隔合理,最大限度的滿足使用率,符合品牌定位,同時具備美感和觀賞效果。

-
深圳龍華明星發廊外立面裝修設計
明星發廊外立面的裝修設計,黑色實木的門框,搭配藍色的燈箱,和整體效果搭配起來,把黑色神秘深邃的特質充分的發揮出來,顯得時尚而有特點,符合現代流行元素。

-
深圳龍華明星發廊前臺裝修設計
曲線的入戶風格,顯得空間整體立體效果非常好,圓弧形的柜子和吧臺,深灰和淺灰色的顏色對比,水泥色的頂面,咖啡色的地面,充滿歲月侵蝕的懷舊感。

-
深圳龍華明星發廊美發區裝修設計
不規則曲線的空間,搭配同樣效果的頂面,燈膜的大面積應用增強立體感和空間感,圓弧形的柱子和墻面,發型師工作區沿著整體造型的排列,藝術感強,造型獨特搶眼。

-

深圳龍華明星發廊造型區裝修設計
灰色的頂面和一部分墻面連接,可以使視野效果更好,復古風的頂面,結合現代的壁紙和天然大紋理的地面,在滿墻的鏡子反射下,創新新穎,造型特立獨行。
深圳龍華明星發廊洗頭區裝修設計
洗頭區安排在獨立的空間,不僅使空間的分化更為合理,同時更具備專業性,鏡子的墻面,使得空間視野效果上看更寬敞,不會產生狹小和擁擠的感覺。






















