項目地點:深圳市羅湖區銀湖
設計理念:本案是一所混合型風格的大型美發店裝修設計案例,混合型風格是現在比較潮流的一種裝修風格,它將古今中西融合于一體。如:傳統屏風、擺設配以現代風墻面及門窗、沙發,給人一種時尚、與眾不同的感覺。而且混合型風格的裝修在設計中不拘一格,總能給人煥然一新的感受。

深圳羅湖大型美發店造型區裝修設計
室內空間為直長型低矮空間,天花板用鏡面不銹鋼延伸了空間高度,設計師運用不同的材質在空間中綜合運用,不同的肌理形成有節奏的韻律感;黑白灰作為主基調,金屬感強調了工業感,試整個空間顯得輕盈奢華。


深圳羅湖大型美發店入戶裝修設計
入戶的設計嗎,采用黑鈦拉絲不銹鋼的落地式門窗設計,可以將內部空間最大限度的有一個展示作用,黑色哥特風模特的展示,給場景增加一份神秘和深邃的黑色幽默氣質。










深圳羅湖大型美發店理發區裝修設計
設計師認為,設計作品應該和人產生互動,讓人情感得以滿足,空間與人之間不一樣的互動,造就了不一樣的空間魅力。在燈光的處理上,理發區域的造型燈帶,銅材質的圓環型吊燈兼顧了兩邊座位的燈光需求。和VIP區域的鏡前燈也形成了呼應,強調細節的同時也不失整體的協調。

深圳羅湖大型美發店過道裝修設計
設計師在空間后期的掛畫選擇上精心挑選,讓看似隨意涂抹的墻面更具觀賞性,活躍了空間氣氛。每個工作區域的間距也是精心計算過,每一個做造型的客人都能同時享受發型師和助理的服務,在這個什么都簡單化的世界,恰恰這里沒有省去的就是人情味。在享受發藝造型時,還能獲得和緩心靈的滿足體驗。



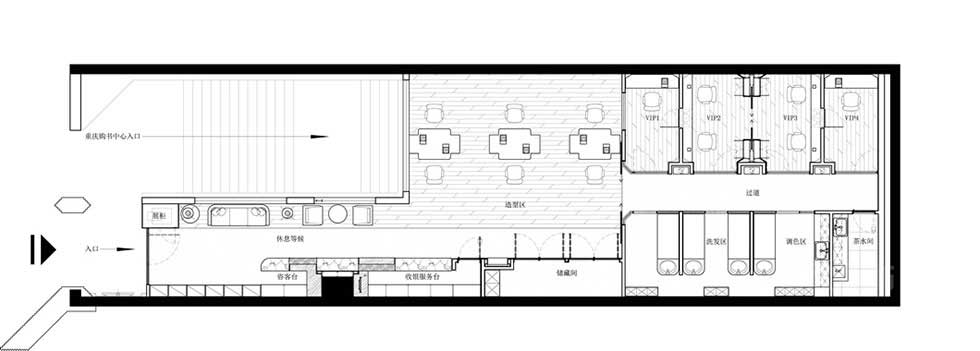
平面方案圖








