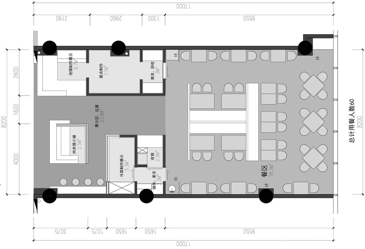
高凳子面館裝修設計,位于深圳福田區香蜜湖,裝修面積150平方米。面館裝修采用深色調設計,深灰色的防滑地磚,墻面深灰色水泥肌理漆,天花深灰色金屬鋼管設計。黑色的沙發卡座、深色柚木的實木餐椅,和白色的餐具形成對比,襯托出餐具的潔白與干凈。深色的面館裝修,根根通過燈光營造氣氛,于餐桌的正上方設置圓形的黑色的金屬吊燈,暖色的燈光直接近距離照在美食菜品上面,更能激發人的食欲。

黑色的防滑地磚,墻面深灰色的水泥肌理漆。

黑色拉絲不銹鋼的門面招牌,設計金屬的發光字。

150平方米的面館裝修,能同時容納50人就餐。

深色質感的水吧臺,黑色大理石臺面,深色原木條形餐凳。

條形的面館卡座,與深色實木餐椅對應布置。

隔斷以水磨石集成護墻板飾面,圍合出一些獨立的私密性的就餐區域。


白色的石材臺面,搭配白色的餐具。







