項目地點:深圳市福田區保稅區
設計理念:本案是一所現代工業風的水果店裝修設計案例,黑白灰色系是工業風格給人的視覺第一感受, 黑色與白色的碰撞給人一種神秘與冷酷氣質,灰色與黑白協調可以創造出很多變化。我們看到的工業風裝修無論在家庭中還是辦公場所都會給人這種視覺上的冷酷感。
工業風在墻面與地面的裝飾上一般都會選擇裸露的磚塊,或者在磚塊上粉刷黑色、白色或是灰色作料,粗糙的質地、斑駁的機理效果都會表現出一種舊舊的卻又非常時尚粗獷的視覺效果。水泥墻或者水泥地面是工業風格裝修的經典元素之一,水泥墻面泛著冷靜的光澤看似冷漠卻又非常具有現代感。墻面有時會用涂鴉的裝飾方式表達它的特別之處。頂面水泥頂面會保持原有色彩或者涂刷成黑色,原始的水電管道排布其下,或隱秘或在燈光的照射下偶爾閃現出一道金屬光,神秘感覺十足。

深圳福田水果店大廳裝修
水果店大廳的裝修設計,保留原始結構的頂面噴黑,以裸露的管道和通風口,鐵藝吊燈等元素,最大程度的體現出極簡搭配方式,和工業感的粗獷和隨性,體現出自由和簡約的理念。

深圳福田水果店冷飲吧裝修
原木系的地面,灰色的墻面,加上黑色原始結構的頂面,整體看上去自然和諧,燈眉走邊在白色的射燈燈光下,黑板背景墻顯得效果凸出,時尚大方,簡約中透出北歐風的文青氣息。

深圳福田水果店吧臺裝修
原木色的吧臺,白色大理石的臺面,涂鴉式的簡約畫風背景墻,讓客戶一進店就能感受到一種時尚而且細膩的情感,抬頭就可以通過燈牌選擇按自己的喜好選擇喜歡的水管和冷飲。





深圳福田水果店休息區裝修
原木色的掛墻書架,搭配黑白兩款的經典沙發把他組成的卡座,在炎熱的夏日,一邊享受水果的激情,一邊喝著冰涼的冷飲,讓客戶購買之后就能之間享受一場溫馨的下午茶時光。

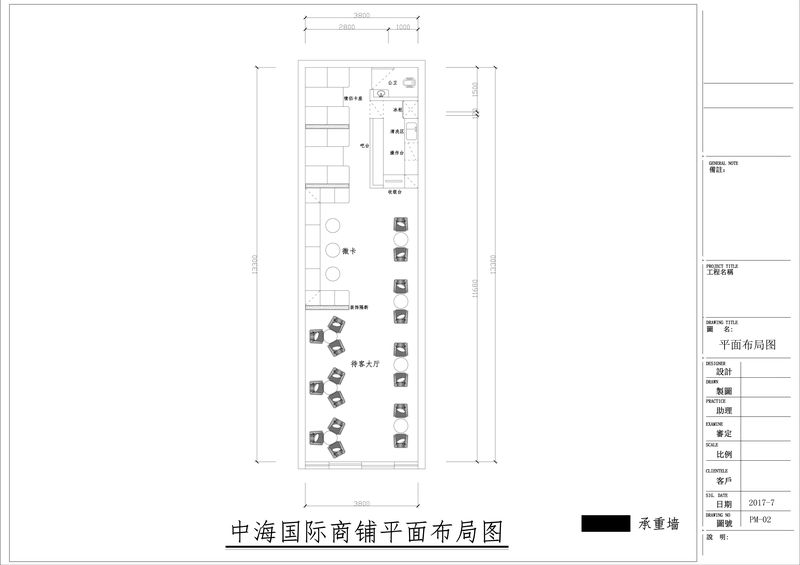
水果店的平面布置,在有限的空間里,把功能性體現的淋漓盡致,水果店和冷飲吧雙重結合的設計方式,滿足了現代生活的追求,同時,布置的如咖啡廳一般小資的生活情調。







