項目地點:深圳市龍華區大浪,面積約200平方,裝修費用約13萬。
設計理念:本案是一所工業風的美發沙龍裝修設計案例,工業風在墻面與地面的裝飾上一般都會選擇裸露的磚塊,或者在磚塊上粉刷黑色、白色或是灰色作料,粗糙的質地、斑駁的機理效果都會表現出一種舊舊的卻又非常時尚粗獷的視覺效果。水泥墻或者水泥地面是工業風格裝修的經典元素之一,水泥墻面泛著冷靜的光澤看似冷漠卻又非常具有現代感。墻面有時會用涂鴉的裝飾方式表達它的特別之處。頂面水泥頂面會保持原有色彩或者涂刷成黑色,原始的水電管道排布其下,或隱秘或在燈光的照射下偶爾閃現出一道金屬光,神秘感覺十足。
-
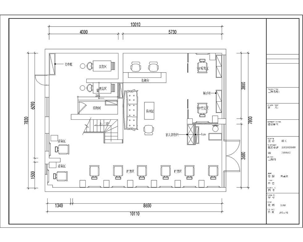
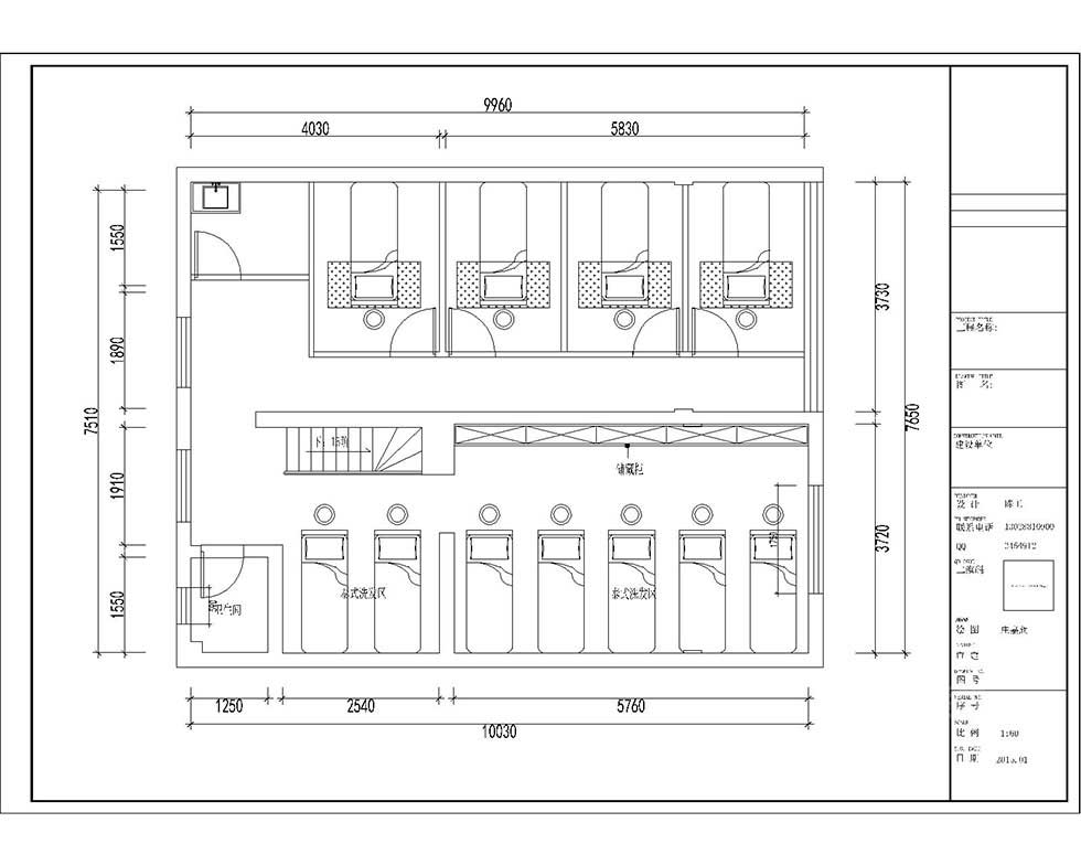
深圳美發沙龍裝修設計施工案例平面布置
美發沙龍平面布置圖,結構布局合理,空間分隔性強,滿足使用功能性的同時,塑造出符合品牌定位的,以及年輕人所喜愛的,設計感和現代潮流時尚感。


-
深圳美發沙龍大廳裝修設計
美發沙龍大廳的設計,采用工業風的設計理念,淺灰色的墻頂面和裸露的線管,軌道式射燈,凸顯出車間工業風的冷峻,深灰色斑駁的水泥地面,體現出時間侵蝕的古舊痕跡。


-
深圳美發沙龍前臺裝修設計
白色的文化石背景墻,點綴出粗獷的文藝氣息,黑色實木帶金屬圓釘的前臺,鐵藝的手工黑色吊頂,在黑白兩種色調的對撞下,給人一種古老而神秘的既視感。


-
深圳美發沙龍洽談區裝修設計
棕色可以做舊的沙發,長條形的茶幾和高腳吧椅的組合,灰色的水泥墻面,咖色木地板等元素的組合,給人一種充滿故事的懸念,營造出一間古來的咖啡廳或者小酒吧的味道,仿佛中充滿了歷史的見證和時代的傳奇。


-
深圳美發沙龍入戶裝修設計
文化石墻面和白墻的對比,中間放上鐵藝的藍色小屏風,有著工業味道的同時,滿足人們的好奇心,又對里面的事物充滿了好奇和遐想。


-
深圳美發沙龍樓梯裝修設計
鐵皮的樓梯,鐵欄桿的扶手,上面銹蝕的痕跡,和斑駁的感覺,都是述說著對于過去故事的見證,非常有歷史的年代感和手工業的特質。

















