精細的裝修設計,誠然顯得整個空間高貴豪華,但粗糙簡單的裝修設計,也能體現出空間底蘊的深厚。學生見慣了精細的裝修設計,再來到粗糙簡單的裝修設計中,觀感不同,體驗不同,得到的學習效果自然也不同。汕尾英語培訓中心裝修設計在培訓中心裝修上,便以粗糙簡單作為其對外展示的主要風格。它的天花板是純以管道式的結構,相互連接,簡單中蘊含著對學習的期盼;它的墻體是灰磚契合式的,簡單中透著農村的淳樸和自然的氣息;它的地板也是地板磚粘合鋪就而成,表示著只有學習才能改變命運。因而,整個空間顯得非常大氣恢弘,教人身在其中,愛在其中,樂在其中,若再加上原木色的隔斷墻壁,以及整齊劃一的課桌,整個培訓學校裝修便顯得更具簡單粗糙中有精有細了。
汕尾英語培訓學校裝修設計

汕尾英語培訓學校裝修設計,卡座區以不同顏色的椅子營造一些變化。整個教室中心設置了洽談室,周邊以黃色木紋裝飾。

汕尾英語培訓學校裝修設計,卡座區地面鋪灰色地板膠,利于防滑,以木架做成的透空隔斷分隔空間。

汕尾英語培訓中心裝修設計卡座區2,天花保留原管線,噴白色乳膠漆,增加教室層高,節省裝修費用。

汕尾英語培訓中心裝修設計,獨立的小教室以木紋裝飾,顯得特別溫馨。

汕尾英語培訓中心裝修設計玻璃隔斷

汕尾英語培訓學校裝修設計,書架用來放置學生用品。

汕尾英語培訓中心裝修設計,過道旁邊教室以紅磚裝飾,形成粗礦的肌理效果。

汕尾英語培訓中心裝修設計獨立教室

汕尾英語培訓學校裝修設計休息區

汕尾英語培訓中心裝修設計自習區1

汕尾英語培訓中心裝修設計自習區,窗外的景色,能很好的緩解眼睛疲勞。

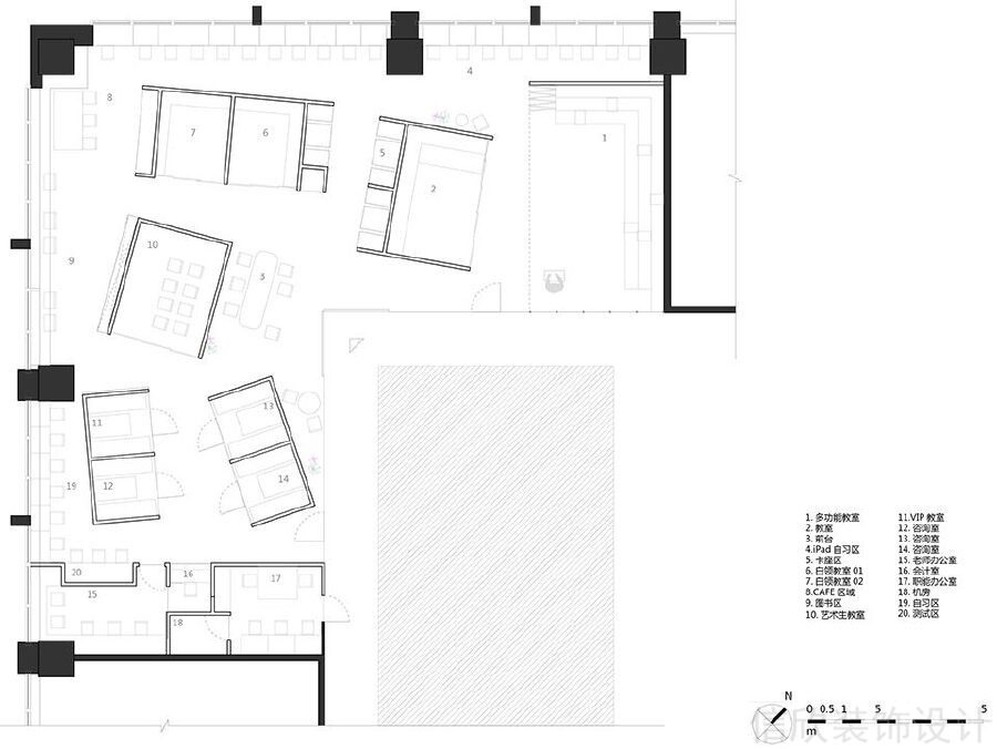
汕尾英語培訓學校裝修設計平面圖







