潤恒尚園深圳寶安家居裝修,工程地址位于深圳寶安西鄉潤恒尚園,面積98平方米,原結構二房二廳一衛。應客戶要求,經過設計師巧妙的構思,改為四房二廳二衛。本案客戶屬于80后,希望能設計的比較個性化。客廳、餐廳、衛生間的墻體都設計成弧線形,是空間靈動富于變化。客廳天花做成圓形暗藏燈槽,沒安裝主燈,以燈槽暗藏燈光漫反射照明,顯得室內更加溫馨,信欣深圳裝修公司案例

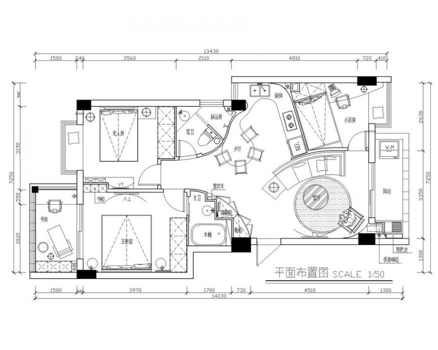
潤恒尚園深圳寶安家居裝修-平面圖
家居平面圖,三房改五房。

潤恒尚園深圳寶安家居裝修-電視墻
圓形天花,圓形沙發,圓形茶幾互相呼應

潤恒尚園深圳寶安家居裝修-客餐廳裝修全景
圓形天花暗藏燈光,圓形茶幾配圓形地毯

潤恒尚園深圳寶安家居裝修-沙發背面
潤恒尚園深圳寶安家居裝修-沙發背面

潤恒尚園深圳寶安家居裝修-餐廳全景
馬賽克弧形墻面,圓形餐桌配圓形吊燈

潤恒尚園深圳寶安家居裝修-客廳餐廳
潤恒尚園深圳寶安家居裝修-客廳餐廳

潤恒尚園深圳寶安家居裝修-吧臺墻面
弧形吧臺,石英石臺面

潤恒尚園深圳寶安家居裝修-吧臺2
石英石弧形吧臺,鏡面馬賽克墻面

潤恒尚園深圳寶安家居裝修-吧臺
潤恒尚園深圳寶安家居裝修-吧臺

潤恒尚園深圳寶安家居裝修-餐廳
潤恒尚園深圳寶安家居裝修-餐廳

潤恒尚園深圳寶安家居裝修-客廳
圓形天花,暗藏燈光,防滑磚鋪地






