項目地點:深圳市羅湖區東門
設計理念:本案是一所復古風的美發店裝修設計案例,它將古今中西融合于一體。如:傳統屏風、擺設配以現代風墻面及門窗、沙發,給人一種時尚、與眾不同的感覺。而且混合型風格的裝修在設計中不拘一格,總能給人煥然一新的感受。

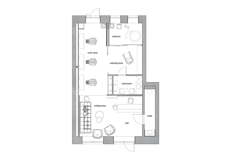
- 100平方復古風美發店裝修設計平面布置
平面布置圖符合復古風的設計理念,將功能性和使用價值放大到最大化,保證不浪費每一寸空間,兼具美觀性和品牌個性。

- 100平方復古風美發店大廳裝修設計
大廳的裝修設計采用復古風格為主題,場面和頂面一體式的木飾面板,作為一個空間的主體結構,使空間的協調性更強烈,同時深色木飾面的應用,具備復古和時尚的雙重特點,體現了復古風歲月侵蝕的痕跡,又具備現代審美的文藝氣息。

- 100平方復古風美發店洽談區裝修設計
慵懶的午后,端著一杯醇厚的咖啡,點燃一支雪茄,坐在純皮的高端沙發上,盡情的享受愜意的下午茶時光,讓時間在這一刻精致,望著窗外川流不息的人群和車流,在古典雅致的房間中細細的品味歲月靜好。

- 100平方復古風美發店前臺裝修設計
原木風的背景墻,通過小圓的圖案分隔,明暗色調的對比,強調立體感和設計感,配合立式商品的展柜,同時具備展示和美觀的功能性,黑色大理石臺面和原木條紋的前臺,提升了整體的檔次,和復古風特有的雅致和格調。

- 100平方復古風美發店背景墻裝修設計
質感水泥的墻面,看上去紋理豐富,肌理細膩,非常有時間和歲月侵蝕的沉靜味道,暗門的設計則體現出現代與古典結合的韻味,通過簡單的手法,表達出古典的情懷。

- 100平方復古風美發店洗頭區裝修設計
和大廳做了獨立分隔的洗頭區,復古式的木門,可選擇開放或者不開放,頂面的射燈和地磚相呼應的經典黑白搭配,看上去很有對稱的美感,更有不屬于奢華裝修的優美。


- 100平方復古風美發店美發區裝修設計
美發區通過黑白地磚的地面,和前廳的木地板做了一個區域分隔,比起前廳的實木復古風,走的是一種簡約工業感的路線,體現出造型師瀟灑,率性,不拘一格的豪放與灑脫的特質。


- 100平方復古風美發店衛生間裝修設計
復古式的地磚體現出設計結構的多樣性和色彩感,不會顯得冰冷和單調,然后通過水泥墻面和木飾面背景墻的元素碰撞,在光影的照射下,體現多樣性的立體感和多變的視覺效果。















