本案位于深圳市南山區后海茉莉的氧氣廚房,是一所原木風的甜品中西餐培訓教室的裝修設計案例,現代風格是比較流行的一種風格,追求時尚與潮流,非常注重居室空間的布局與使用功能的完美結合。普遍適用于中小企業。造型流暢,大量運用線條,喜歡用植物裝點各個角落,通過光和影的應用效果,在較小的空間內制造變化,在線條和光影變幻之間找到對心靈的沖擊。


茉莉的氧氣廚房設計理念上,白色簡約為主體,體現了干凈,清新的氣息,讓人一見面撲面而來的就是貼合于自然的香氣,不帶一絲瑕疵的最純粹的美。



樓梯的設計上,沿用了工業風的黑色鋼結構和原木樓板的結合,工業線條的粗獷,結合自然色的純粹,經久不過時的經典搭配。




自然復古的水泥地板,原木風的案臺,純白色的人造石臺面,行云流水的流暢,隨性,簡約,消除了塵世中一切繁雜的情緒和負能量。


黑色的原木長桌,沉穩,內斂中多了一份神秘深邃的氣質,加了燈條的原木色置物板,溫馨簡單,看上去多了一份恬靜和悠閑。


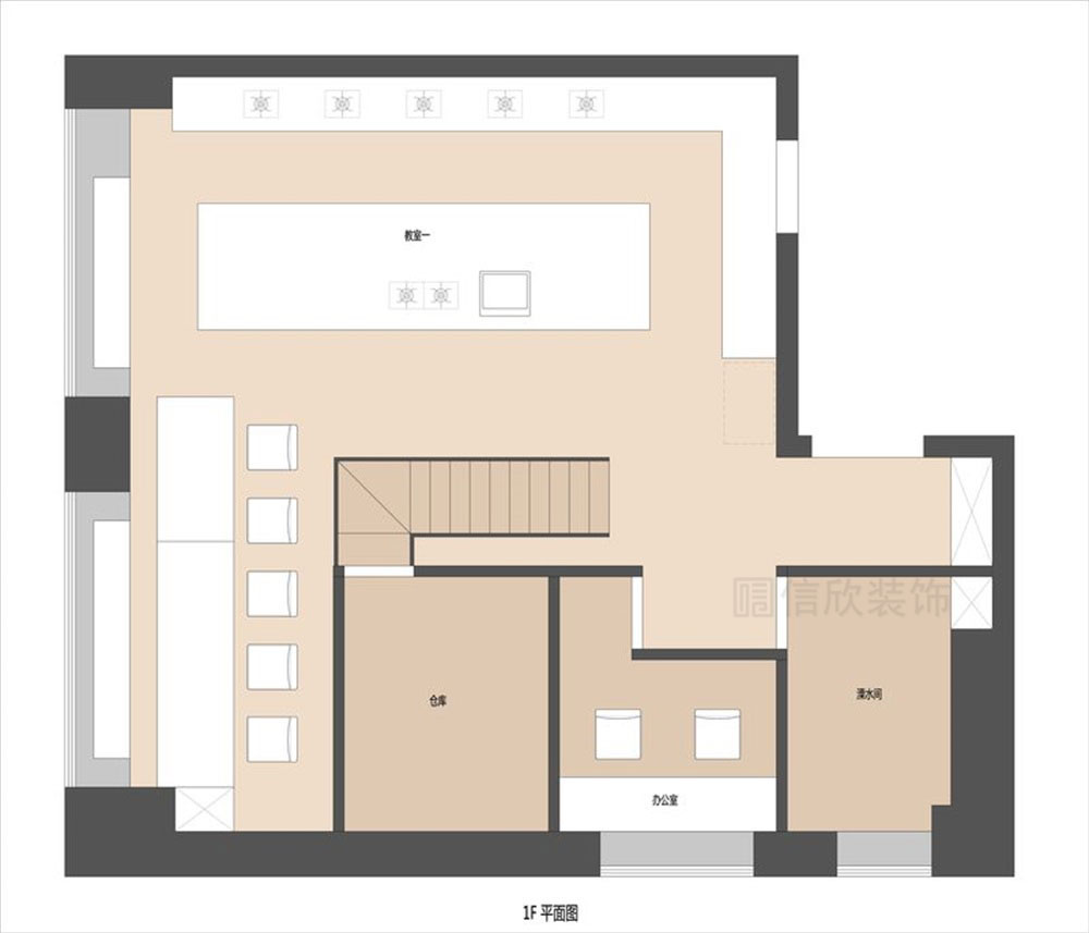
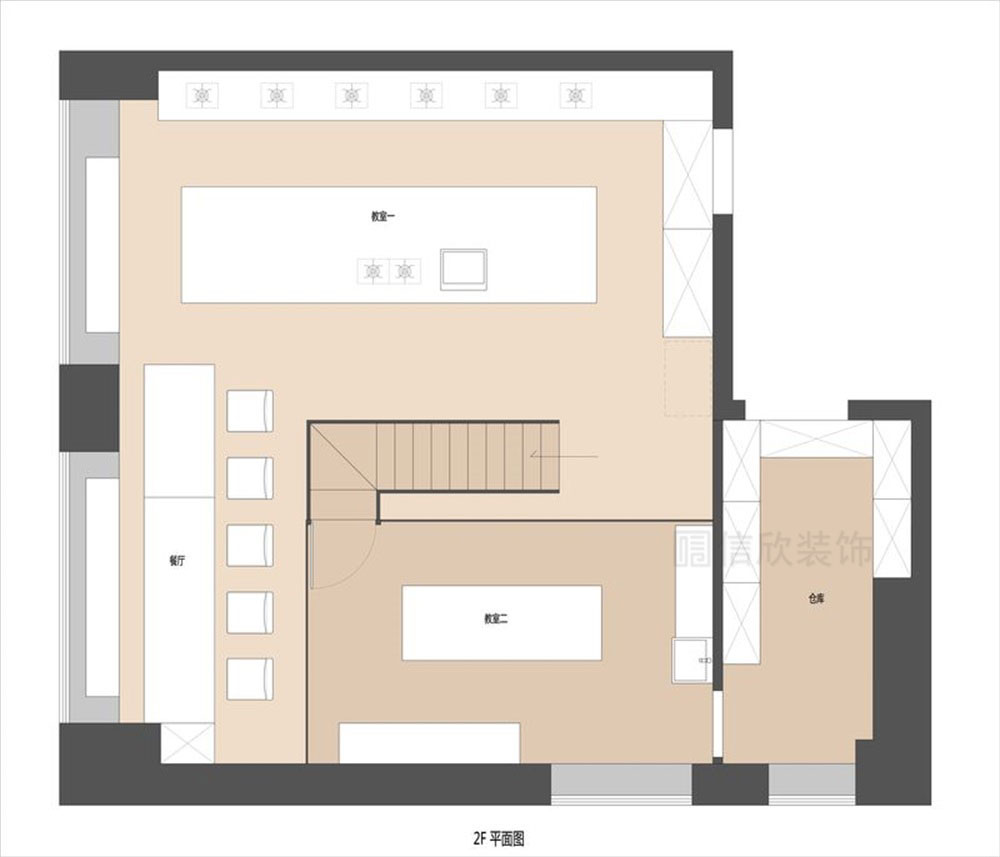
整體空間感強,功能區域分布合理,讓整個區域的面積感,得到了很強的提升,又能完美的滿足培訓學院所需要的一切需求。







