本項目位于深圳龍崗坂田華南路與民康路交界處春華四季園,是一套輕奢風格新房裝修設計案例。通過多次跟業主溝通探討,最終我們希望打造一個輕奢風格的家居氛圍和空間格調。整體的室內環境承載著業主對于生活,對于家,對于心中凈土的期許,顏色搭配以高級灰結合留白為基調,低飽和度彩色點綴其間,形成輕松舒適的空間氛圍,同時也不乏低調內斂的腔調。空間圍合以線性元素貫穿其中,雅致,流暢,搭配輕奢家具,干凈奢雅,結合大理石和金屬的紋理走向,讓空間背景兼顧美觀舒適的同時,植入安靜純粹的精神觀感。

深圳龍崗坂田輕奢風格新房裝修設計的餐廳區域大面積墻面選用米灰色肌理壁紙和淺灰色的油漆,讓空間干凈整潔,同時又更有質感。

深圳龍崗坂田輕奢風格新房裝修的選材在滿足設計需求的前提下,著重從環保、品質和經濟等方面著手。

自然采光的有效引入在空間中有提亮環境及散發安靜氣息的效果。

深圳龍崗坂田輕奢風格新房的客廳設計摒除過度的裝飾,視覺中虛實,顯隱,互相作用,形成張力。

家居燈具點染其中,形成靜逸脫俗的藝境之美。

深圳龍崗坂田輕奢風格新房裝修設計的客廳空間仿佛一個安靜的奢雅意境。

深圳龍崗坂田輕奢風格新房裝修設計的素色美學具有極好的和諧感,摒棄一切繁復的華麗,低調而奢華。

深圳龍崗坂田輕奢風格新房玄關空間的設計讓整體氛圍多了幾分優雅。

深圳龍崗坂田輕奢風格新房裝修設計的主臥以多層實木地板的實際使用,讓睡眠休息空間更具溫馨舒適的感受。

深圳龍崗坂田輕奢風格新房裝修設計的次臥床頭背景的高級灰亞光油漆,質感十足。

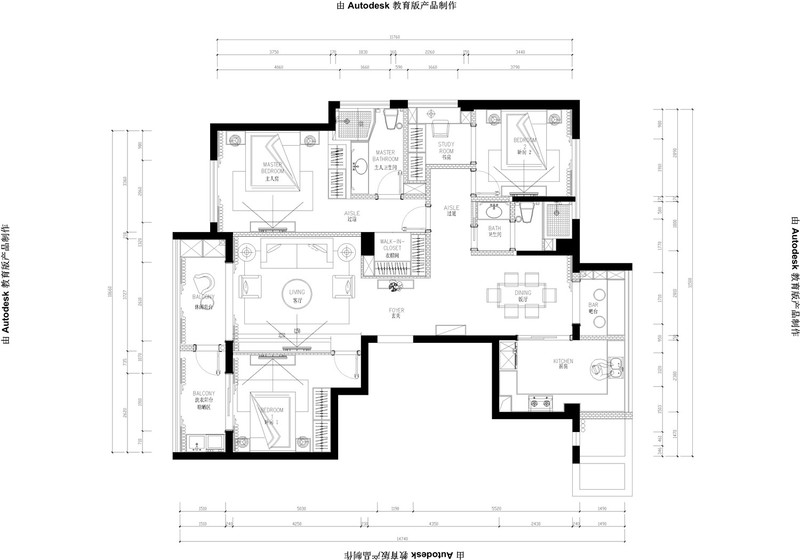
深圳龍崗坂田輕奢風格新房裝修設計—平面布置圖







