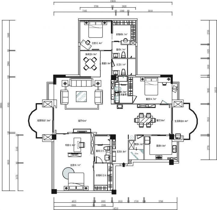
福田匯港名苑中式深圳家居裝修,工程位于福田區福田匯港名苑中式A座2203,面積208平方米,五房兩廳兩衛。整體裝修偏現代風格,色調以黑白色對比為主。白色地磚,墻面白色乳膠漆,天花白色乳膠漆。各種家私門窗裝飾以黑色木紋飾面,整體穩重大方。
沙發以黑色皮質制作,配以紅色靠枕點綴,并擺放2個斑馬紋單人沙發,以形成一些變化。沙發背面墻以條紋大理石縱橫交錯鋪貼,典雅高貴。
臥室墻面黑白花紋墻紙飾面,色調搭配緊扣主題,白色的墻面做背景,襯托出黑色家私的厚重高檔。床單應用暗紅色,使潔凈的臥室多出一份溫馨熱烈。
進門過道天花以石膏板為主,中間做深色木雕花,光線從木雕花上面投射下來,形成無限的光陰變化。

福田匯港名苑中式家居裝修-臥室6
密度板雕花背景墻,方塊硬包墻面

福田匯港名苑中式家居裝修-衛生間4
水泡玻璃衛生間隔斷

福田匯港名苑中式家居裝修-臥室5
紅色布藝軟包床頭背景

福田匯港名苑中式家居裝修-臥室4
紅色布藝軟包床頭背景

福田匯港名苑中式家居裝修-客廳全景
大理石餐桌,布藝餐椅

福田匯港名苑中式家居裝修-娛樂室
黑色磨砂烤漆玻璃墻面,自動麻將桌。

福田匯港名苑中式家居裝修-廚房
櫥柜紫色金鋼門板,白色石英石臺面,廚房鋁扣板造型天花。

福田匯港名苑中式家居裝修-客廳8
石膏板造型天花刷白色乳膠漆

福田匯港名苑中式家居裝修-餐廳2
木質工藝酒柜

福田匯港名苑中式家居裝修-過道
密度板雕花造型天花,油木柜子

福田匯港名苑中式家居裝修-客廳7
大理石和布藝軟包背景墻

福田匯港名苑中式家居裝修-客廳6
白色拋光磚鋪地,石膏板造型吊頂,方塊布藝地毯。

福田匯港名苑中式家居裝修-衛生間2
衛生間前面貼黑色皮紋瓷磚,白色大理石洗手臺。

福田匯港名苑中式家居裝修-衛生間1
福田匯港名苑中式家居裝修-衛生間1

福田匯港名苑中式家居裝修-臥室5
柚木地板鋪面,黑色花紋墻紙裝飾墻面。

福田匯港名苑中式家居裝修-客廳5
白色斑馬紋皮革沙發,大理石布藝電視墻

福田匯港名苑中式家居裝修-餐廳
深色實木烤漆木紋酒柜

福田匯港名苑中式家居裝修-臥室1
玻璃不銹鋼辦公桌,黑色木紋書柜

福田匯港名苑中式家居裝修-臥室2
磨花玻璃背景墻,紅色條紋床單。

福田匯港名苑中式家居裝修-臥室3
黑色生態木隔墻,花紋墻紙貼墻

福田匯港名苑中式家居裝修-客廳4
石膏板鏡面拼接天花,條紋大理石墻面。

福田匯港名苑中式家居裝修-客廳3
鏡面天花,大理石背景墻,黑色皮質沙發。

福田匯港名苑中式家居裝修-玄關
磨花玻璃推拉門,銅制小鹿工藝品。

福田匯港名苑中式家居裝修-客廳1
斑馬紋沙發,大理石拼花背景墻

福田匯港名苑中式家居裝修-客廳
客廳條紋方塊地毯

福田匯港名苑中式家居裝修-平面圖
三房二廳平面圖







