項目地點:深圳市福田區車公廟
設計理念:Juice咖啡理發店需要在諸多功能元素之間取得平衡。項目的功能要在理發店,咖啡廳,雞尾酒吧和多功能機會空間之間轉換,為了實現這一目標,設計采用了隱藏未使用構件的策略,使得這個僅有80平米的空間可以靈活容納最多的功能,同時具有一種不經粉飾的現代美感。

黑色的小理發店吧臺裝修
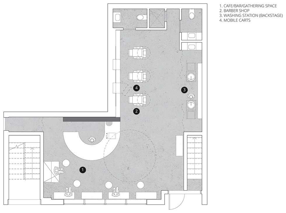
項目中最引人注目的部分是由弧形金屬波紋板和混凝土做成的吧臺,它幾乎占據了整個空間,側面可以用作理發師的工作臺。吧臺下方設有可以隨意移動的推車,理發椅也可以簡單地收納到洗發間中。模塊化的復合木板椅進一步加強了空間的靈活性,它們可以被移動組合以適應不同功能。

黑色的小理發店吧臺裝修
吧臺是空間中最主要的部分,木板制成的椅子模塊可以根據需要組合使用
▼簡潔的空間承載不同活動


▼洗發間,可以用來收納理發椅


黑色的小理發店洗發區裝修
設計師還在店內和相鄰的庭院中設置了一幅可以整合在一起的壁畫。這是一個富有實驗性的項目,嘗試使用有限的資源創造一個新型的,令人印象深刻的商業空間。
▼具有不同功能的空間

黑色的小理發店大廳裝修
吧臺和造型區一體式的獨特設計,打破了傳統的理念,整體格局統一性強,而且大大增加了空間的開闊性,看上去明亮大方,簡潔時尚中更富有新穎的設計理念。
▼平面圖








