項目地點:深圳市福田區八卦嶺
設計理念:本案是一所新新風格的高科技企業展廳裝修設計案例,就名思議,它反映的是一種時尚,一種新興的產業。不拘一格,大量使用幾何圖案作為設計元素,明亮度對比強烈,大量使用新式裝修材料。適用于新興的電腦資訊業、媒體行業。在強烈的裝飾效果中,新產品和特征和公司創新科技的氛圍一覽無余。

高科技企業展廳前臺裝修設計
前臺裝修設計理念,來自于生命起源的啟發,通過科幻電影的渲染手法,黑白銀三種顏色的架構,用光影效果做出了DNA螺旋形態的展臺休息區,S形狀的前臺,展現出未來科技感的效果呈現。

高科技企業展廳大廳裝修設計
用本身產品石墨烯作為背景墻,很直觀的讓人看到實物的一個參照效果,巨大的LED顯示屏背景,既能作為宣傳影片的播放,又能感受到科技對傳統設計的顛覆和影響。

高科技企業展廳小放映廳裝修設計
不規則的空間結構,LED屏幕一走進來,就能直觀的感受到產品宣傳的震撼和魅力所在,在燈塊和燈條的照射下,空間更現代開闊,利于對產品的介紹和企業文化的宣傳培訓。

高科技企業展廳展臺裝修設計
中間位置設立玻璃的展臺,時尚感強位置顯眼,而通過燈光的變幻,強調其凸出和重要性,當人們圍成一圈上去參觀了解時,可近距離的感受科技和產品的魅力。



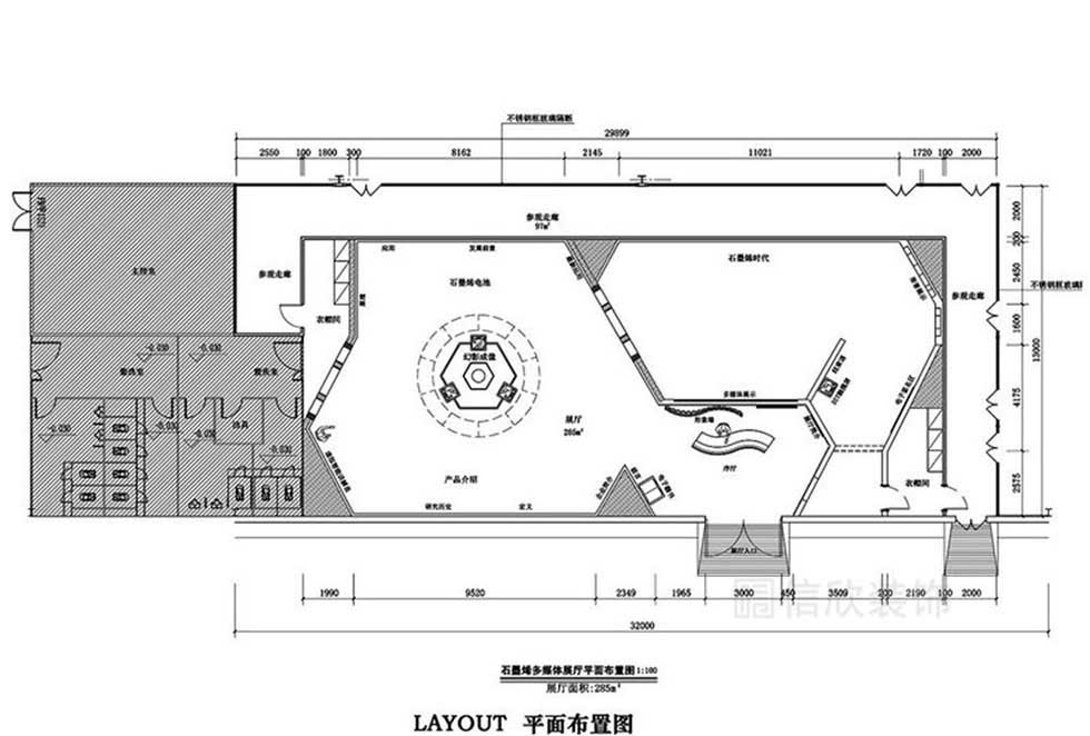
高科技企業展廳平面布置圖
高科技企業展廳平面布置上通過看似不規則的圖形的分隔,其實做出來功能性和實用性強烈的圓弧形參觀路徑,科幻感十足的場景,把設計和科技做了一個完美的結合。







