高通陶瓷專賣店,位于福田國安居,面積700平方米。主要展示了各類潔具馬桶等。整體裝修簡約,色彩淡雅,主要通過細節的燈光烘托場景,一切都是為了突出產品的精美。采用對比的設計手法,潔具主要以高亮的白色為主,為襯托展品,背景色或灰色、或深色、或粗糙,以展示產品的晶瑩潔白。
進門后首先映入眼簾是9個原石頭做的高臺,安放了9個洗手盆,上面對應著安裝的9個射燈;展廳中心區地面抬高,鋪拋光磚,坐落有致的擺放著各式馬桶。展廳后面設有體驗式營銷區,各類洗手盆接通了冷熱水和下水,可以現場體驗水龍頭的效果。設置有和家庭一樣的衛生間多個,里面設施齊全,讓客戶可以有更好的體驗,信欣深圳裝修公司案例。

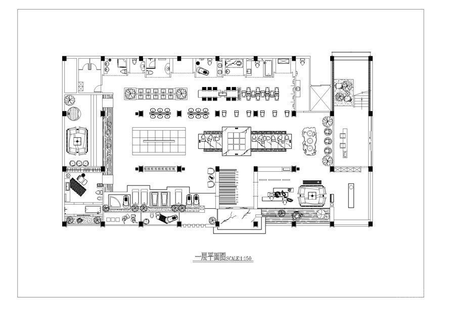
高通陶瓷展廳裝修_平面圖
高通陶瓷辦公室平面圖,分為辦公區,洽談區,展示區

高通陶瓷展廳裝修_馬桶展區
石英石窗臺

高通陶瓷展廳裝修_洗手盆展區
大理石地臺,毛石小展臺

高通陶瓷展廳裝修_洗手盆體驗區
生態板柜體,黑金砂大理石臺面,圓形鏡子

高通陶瓷展廳裝修_茶幾
紅色烤漆臺面茶幾

高通陶瓷展廳裝修_水龍頭展區
木格展架,烤漆玻璃墻面

高通陶瓷展廳裝修_接待區
紅色沙發

高通陶瓷展廳裝修_洗手盆展區1
灰色防滑磚鋪地,白色大理石臺面

高通陶瓷展廳裝修_水龍頭展區1
黑色拋光磚鋪地,木格展架

高通陶瓷展廳裝修_門面
黑色鋁合金隔斷玻璃,蒙古黑大理石臺階

高通陶瓷展廳裝修_洗手盆體驗區2
黑色噴漆天花,黑色大理石洗手臺

高通陶瓷展廳裝修_景觀1
粗糙的石頭展臺,形態各異的洗手盆

高通陶瓷展廳裝修_景觀
黑色大理石花臺,不銹鋼小吊燈。







