蒙娜麗莎瓷磚質量怎樣,性價比怎樣

通體瓷質磚以科技傳承自然,經典石代,全通體大理石瓷磚,豐富細膩的肌理,飄逸流暢的紋路,狀若花開,絢麗燦爛,渾然 […]
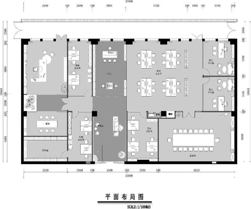
龍華佳華領域廣場新中式辦公室設計

本案位于深圳龍華區佳華領域廣場一個400多平的新中式辦公室設計,從整個空間布局上可以看出是非常方規的區域分布, […]
深圳福田中心公司設計裝修

本案位于深圳市福田區中心皇庭世茂裕璽的公司設計案例,以恢弘大氣的格調為基礎,整體裝修非常宏偉。入門便是通亮的大 […]
深圳龍崗公司裝修設計

本案位于深圳市龍崗區的一個公司裝修設計效果圖。材質搭配與沉穩色系相調和,磨砂金屬與淺木紋的安排讓墻面立體且跳躍 […]
深圳南山簡約辦公室裝修案例

壁爐的溫暖,大理石的冷凝,不同材質的豐富性與光澤之間黑白對比,冷暖碰撞,矛盾中浴火新生的感覺,形成一種和諧由分 […]
諾貝爾瓷磚質量怎么樣,價格怎么樣

一、諾貝爾大理石瓷磚的優點: 1花更少的錢,裝更好的效果 2打理方便,日產輕松打掃 3耐磨防滑 4超強抗污,無 […]